









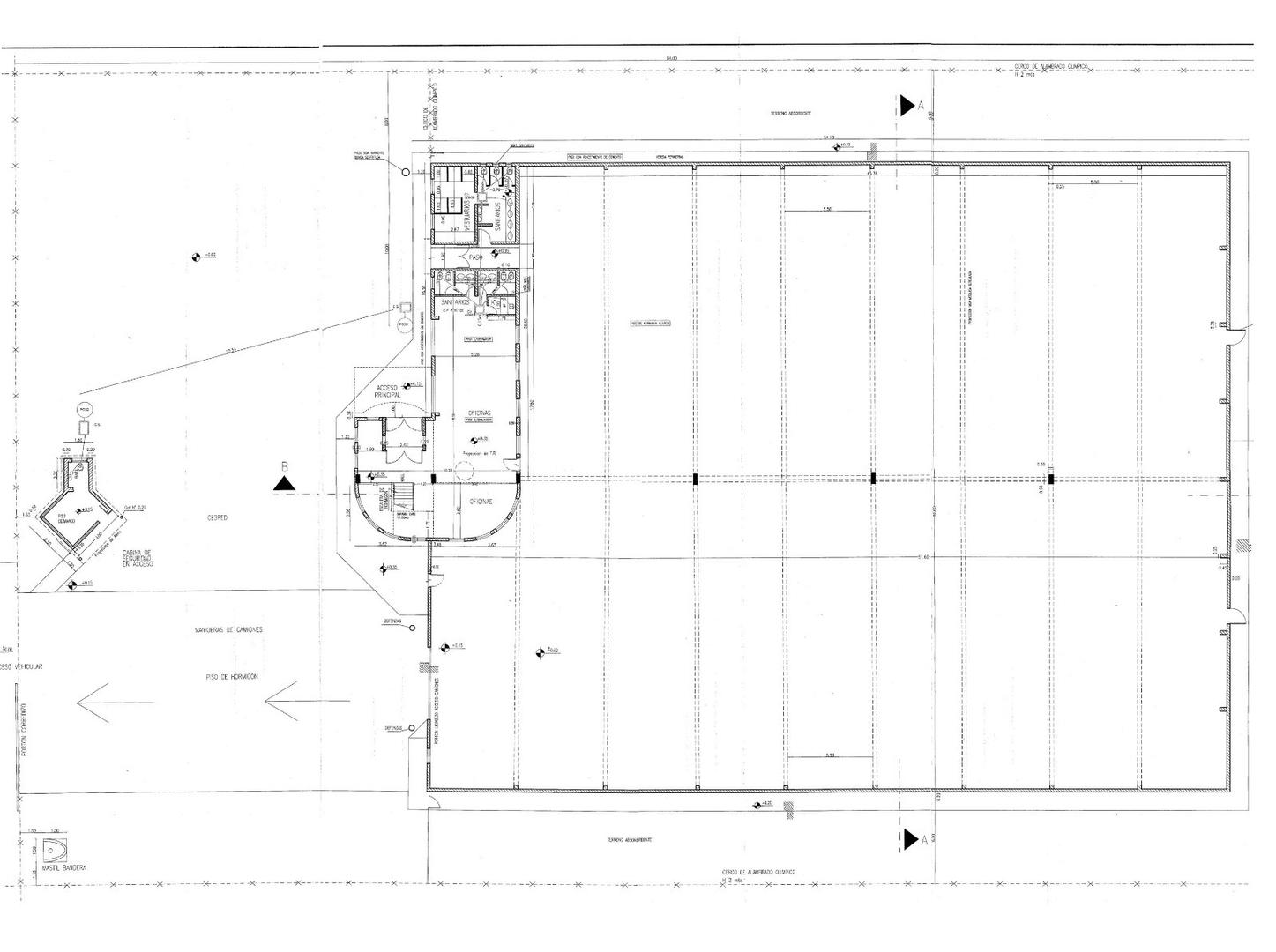
GALPON EN PARQUE INDUSTRIAL CAMPANA - USO LOGISTICA /INDUSTRIAL
Superficie cubierta: 2346m2, 2202m2 en PB, de los cuales1950m2 son libres de galpón para almacenamiento,
los m2 restantes, son de oficinas y baños/vestuarios, distribuidos en 2 plantas.
Terreno: 4452m2
Garita de guardia en el ingreso al predio
Playa de maniobras en cemento armado en el ingreso al predio, 300m2 aprox.
Instalación anti-incendio
Piso H20.
La envergadura del uso Industrial dependerá de lo que EDEN le entregue de potencia necesaria.
Ruta 9 al Km 00
Estado de la propiedad: Muy Bueno
Apto prof.: Sí
Superficie total: 2700 m²
Superficie cubierta: 2346 m²
Superficie terreno: 4452 m²
Altura entrada: 7
Código aviso: 1081